Product Summary
The ltm10c029 is a 26cm colour TFT-LCD module.
Parametrics
ltm10c029 absolute maximum ratings: (1)Supply voltage (VDD): -0.3 to 7.0 V, (VFL)0 to 2.0 kV(rms); (2)FL driving frequency (fFL): 0 to 100 kHz; (3)Input signal voltage (VIN): -0.3 to VDD+0.3 V; (4)Operating temperature: 0 to 50 °C; (5)Storage temperature: -20 to 60 °C; (6)Storage humidity: 10 to 90 %(RH).
Features
ltm10c029 features: (1)10.4” VGA color display with high luminance; (2)Built in long life lamps(30,000 h); (3)Replaceable structure of lamp units; (4)Full mechanical compatible with LTM10C273 (10.4” SVGA).
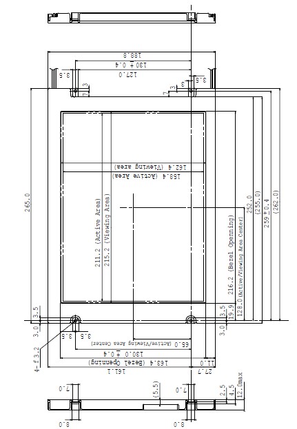
Diagrams

(Hong Kong)






