Product Summary
The LQ104S1LH13 is a kind of color active matrix LCD module which incorporats amorphous silicon TFT (Thin Film Transistor). The LQ104S1LH13 includes a color TFT-LCD panel, driver ICs, control circuit and power supply circuit and a backlight unit. Graphics and texts can be displayed on a 800×3×600 dots panel with 262,144 colors by supplying 18 bit data signal (6bit/color), four timing signals, +3.3V or +5V DC supply voltage for TFT-LCD panel driving and supply voltage for backlight.
Parametrics
LQ104S1LH13 absolute maximum ratings: (1)Input voltage, VI: -0.3 to +5.5 V when Ta=25℃; (2)+5 V supply voltage, VCC: 0 to 6 V when Ta=25℃; (3)Storage temperature, Tstg: -35 to +70℃; (4)Operating temperature (ambient), Topa: -10 to +65℃.
Features
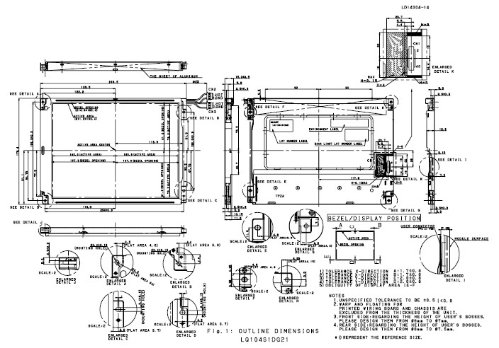
LQ104S1LH13 features: (1)Display size: 26 cm(10.4") diagonal; (2)Active area: 211.2(H)×158.4(V) mm; (3)Pixel format: 800(H)×600(V) pixel (1 pixel=R+G+B dots); (4)Pixel pitch: 0.264(H)×0.264(V) mm; (5)Pixel configuration: R,G,B vertical stripe; (6)Display mode: Normally white; (7)Surface treatment: Anti-glare and hard-coating.
Diagrams

(Hong Kong)






